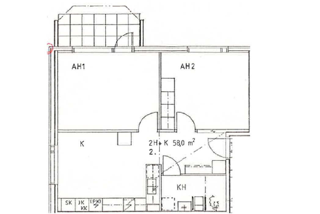
Långgatan 23 A 2
2 r + k
58m²
1. våning
662€/m
Information om bostaden
Lägenhet
Långgatan 23 A 2
Lägenhetstyp
2 r + k
Lägenhetsyta
58 m²
Våning
1 / 3
Marknivå
Ja
Hyra
662 €/mån
Bastu i bostaden
Nej
Balkong
Nej
Terrass
Ja
Karta
Information om bolaget
Bolag
Poikkilinja
Område
Adress
Långgatan 23, 10900 Hangö
Vattenavgift
20 €/pers/månad
Uppvärmning
Fjärrvärme
Rökning
Endast tillåtet på balkonger och på innergården. Ej tillåtet nära entréer
Husdjur
Husdjur är tillåtna, då djuren vistas utanför bostaden skall de hållas kopplade
Fiber
Ja, uppkopplingen ingår inte i hyresavtalet (Karis Telefon)
Allmän bastu
Ja
Hiss
Parkering - kall
Ja, de platser som inte är reserverade
Parkering - el
-
Garage
-
Torkrum
Nej
Tvättstuga
Ja, gemensam användning med Linjegatan 4
Förråd
Ja, i b-trappan och gårdsbyggnaden
Kylförråd
-
Cykelförråd
Ja, i gårdsbyggnaden
Säkerhet
1 månads hyra
Räddningsplan









