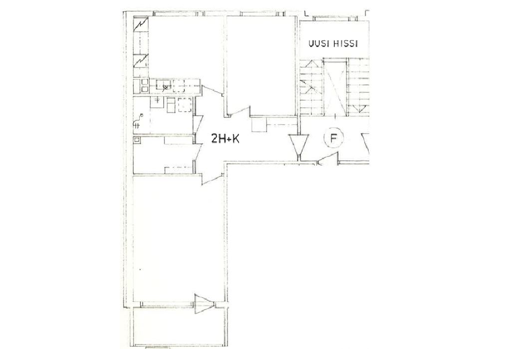
Halmstadsgatan 34 F 24
2 r + k
59.5m²
3. våning
699€/m
Blir ledig 01.12.2025
Information om bostaden
Lägenhet
Halmstadsgatan 34 F 24
Lägenhetstyp
2 r + k
Lägenhetsyta
59.5 m²
Våning
3 / 3
Marknivå
Nej
Hyra
699 €/mån
Bastu i bostaden
Nej
Balkong
Ja, inglasad-
Terrass
Nej
Karta
Information om bolaget
Bolag
Flundran
Område
Adress
Halmstadsgatan 34, 10900 Hangö
Vattenavgift
27 €/pers/månad
Uppvärmning
Fjärrvärme
Rökning
Endast tillåtet på balkonger och på innergården. Ej tillåtet nära entréer
Husdjur
Husdjur är tillåtna, då djuren vistas utanför bostaden skall de hållas kopplade
Fiber
Ja, uppkopplingen ingår inte i hyresavtalet (Karis Telefon)
Allmän bastu
Ja
Hiss
Ja, 1 st
Parkering - kall
Ja, de platser som inte är reserverade
Parkering - el
Ja
Garage
Nej
Torkrum
Ja
Tvättstuga
Ja, i gårdsbyggnaden
Förråd
Nej
Kylförråd
-
Cykelförråd
Ja, i gårdsbyggnaden
Säkerhet
1 månads hyra
Räddningsplan









